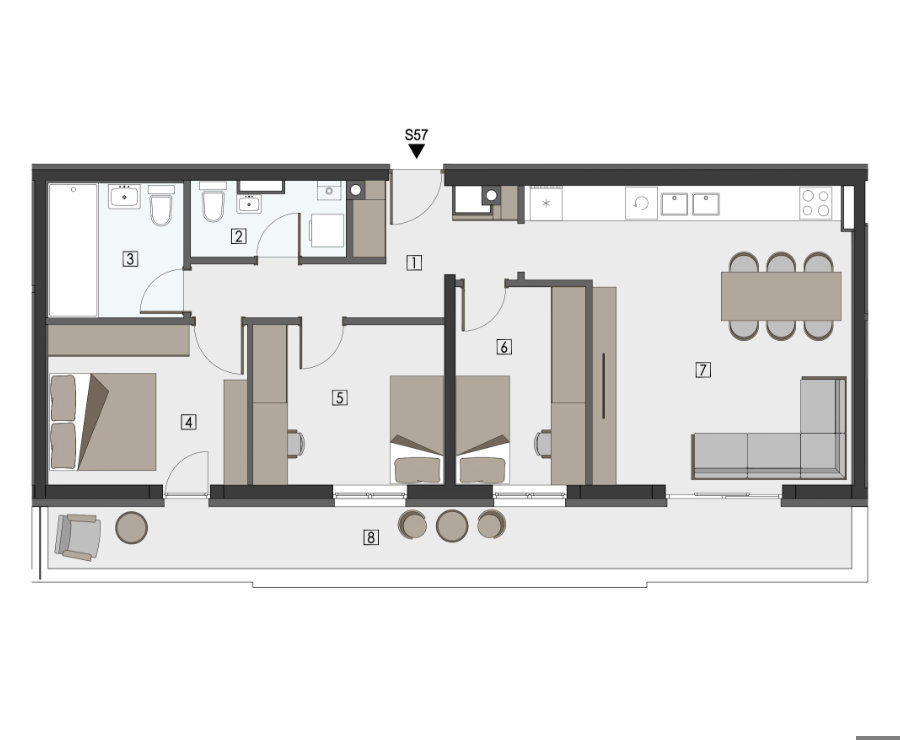
| Oznaka | Prostorija | Koeficijent | Brutto (m2) | Netto (m2) |
|---|---|---|---|---|
| 1 | hodnik | 1 | 9.20 | 9.20 |
| 2 | WC | 1 | 4.00 | 4.00 |
| 3 | kupaonica | 1 | 6.40 | 6.40 |
| 4 | spavaća soba 1 | 1 | 11.20 | 11.20 |
| 5 | spavaća soba 2 | 1 | 10.70 | 10.70 |
| 6 | spavaća soba 3 | 1 | 9.00 | 9.00 |
| 7 | DB blagovaonica i kuhinja | 1 | 29.10 | 29.10 |
| Grijane prostorije | 79.60 | 79.60 | ||
| 8 | natkrivena terasa | 0.5 | 17.40 | 8.70 |
| Negrijane prostorije | 17.40 | 8.70 | ||
| Sveukupna netto površina | 97.00 | 88.30 | ||
Tel:098 983 1336
Email:prodaja@entradavg.com